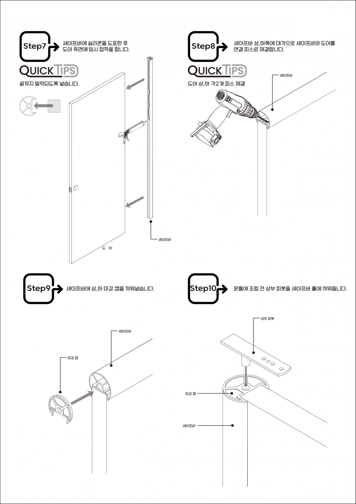
[기능성도어] 세이프도어(손끼임방지 안전도어)
작성일 : 2025-10-16
첨부파일
-
세이프도어 시공가이드.pdf (1.3M)
10회 다운로드 | DATE : 2026-04-15 09:44:09
- 이전글[기능성도어] 히든도어(양개/쪽문타입) 25.10.16
- 다음글[기능성도어] 히든도어 25.11.16